Строительство домов в Уфе и Республике Башкортостан
ДОМА
ПРОЕКТЫ И ЦЕНЫ
БАНИ
ПОСТРОЕННЫЕ ОБЪЕКТЫ
УСЛУГИ
О КОМПАНИИ
РАССЧИТАТЬ СТОИМОСТЬ СТРОИТЕЛЬСТВА ДОМА
+7(963) 900 49 99
Без выходных: 9:00-20:00
Пишите нам, мы онлайн
ИПОТЕКА
8 (963) 900 49 99
Заказать звонок
Сейчас работаем
Строительство домов в Уфе и Республике Башкортостан
Дома
Проекты
Бани
Построенные объекты
Услуги
Строительство фундаментов
Проектирование
Ремонт квартир и домов
О компании
Ипотека
Контакты
Заказать звонок
Строительство фундаментов
Сопутствующее строительство
Проектирование
Ремонт домов и квартир
Технадзор
Готовые дома с участками
Дома из газобетона
Дома из кирпича
Каркасные дома
Дома из дерева
Коттеджи под ключ
Все проекты
Проекты домов из камня и блоков
Проекты домов из дерева
Контакты
Рассчитать стоимость дома
Close
Рассчитать стоимость дома
Этажность
1 этаж
1 этаж с цоколем
2 этажа
2 этажа с цоколем
Длинна дома (метры)
5
20
Ширина дома (метры)
5
20
Материал несущих стен
Кирпич
Керамический блок
Газоблок
Профилированный брус
Оцилиндрованный брус
Каркас из дерева
Материал фасада
Облицованный кирпич
Декоративная штукатурка
Декоративный Камень
Комбинированный сайдинг
Материал перекрытий
Деревянное
Монолитное
Плиты перекрытий
Материал кровли
Металлочерепица
Гибкая черепица
Натуральная черепица
Плоская кровля
Профлист
Планируемая дата начала строительства
В ближайшее время
В течении 3-х месяцев
В течении полу года
Пока планирую
Ваше имя
Ваш номер телефона
Рассчитать стоимость
Оставьте заявку и наш менеджер перезвонит Вам!
Данные успешно отправлены. Спасибо!
Перезвонить мне
+7(963) 90 04 999
ГОЛОСОМ - ПРОЩЕ!
За консультацию и расчет стоимости дома деньги не берём, контакты третьим лицам не передаем и звонками не надоедаем!
Гарантированная скидка в подарок!
Да, перезвоните мне сейчас
Нет, спасибо - я разберусь самостоятельно
{"0":{"lid":"1531306243545","ls":"10","loff":"","li_type":"ph","li_ph":"mail@example.com","li_req":"y","li_masktype":"a","li_maskcountry":"RU","li_nm":"Phone"}}
Заявка на звонок
Выберите параметры дома, чтобы получить точный расчет и гарантированную скидку или подарок!
Нажмите на кнопку "получить расчет", чтобы узнать стоимость строительства дома.
Шаг 1. Укажите параметры дома
1 этаж
1 этаж с цоколем
2 этажа
2 этажа с цоколем
Длинна дома (метры)
5
20
Ширина дома (метры)
5
20
Шаг 2. Выберете исполнение дома
Кирпич
Керамический блок
Газоблок
Профилированный брус
Клееный брус
Оцилиндрованный брус
Каркас из дерева
Материал фасада
Облицованный кирпич
Декоративная штукатурка
Декоративный Камень
Комбинированный сайдинг
Материал перекрытий
Деревянное
Монолитное
Плиты перекрытий
Материал кровли
Металлочерепица
Гибкая черепица
Натуральная черепица
Плоская кровля
Профлист
Шаг 3. Выберите подарок
Окна
Озеленение участка
Скидка 5% на строительство под ключ
Шаг 3. Укажите контакты
Планируемая дата начала строительства
В ближайшее время
В течении 3-х месяцев
В течении полу года
Пока планирую
Получить расчет
Назад
Вперед
Вперед
Заказать звонок
Мы перезвоним Вам в ближайшее время.
Отправить
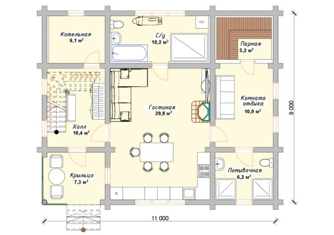
Проект двухэтажного деревянного дома
Размеры дома:
11,00 х 9,00 м
Этажность:
2
Общая площадь:
149,6
Срок строительства:
От 2-х мес.
Характеристики
•Оцилиндрованное бревно
•Профилированный брус
•Клееный профилированный брус
•Простой брус
Варианты исполнения
Получить бесплатную консультацию
Цена строительства дома
От
5 624 750
р.
*Цена указана за Вариант 1
В проект можно внести любые изменения заказчика
•Русская рубка
•Канадская рубка
•Норвежская рубка
•Простой
Варианты ручной рубки
Вариант 1
S общ. 145 м2
Другие проекты
Деревянный двухэтажный дом
От 4 054 350 р.
Площадь, м²
:
107,4
Количество этажей:
2
Деревянный двухэтажный особняк
От 7 629 275 р.
Площадь, м²
:
202,1
Количество этажей:
2
Двухэтажный небольшой деревянный дом
От 5 020 750 р.
Площадь, м²
:
133
Количество этажей:
2
Деревянный уютный коттедж
От 5 020 750 р.
Площадь, м²
:
136
Количество этажей:
2
Двухэтажный деревянный дом балконом
От 5 624 750 р.
Площадь, м²
:
149
Количество этажей:
2
Двухэтажный особняк из дерева для большой семьи
От 6 040 000 р.
Площадь, м²
:
160
Количество этажей:
2
Двухэтажный современный дом с гаражом
От 7 021 500р.
Площадь, м²
:
186
Количество этажей:
2
Современный невероятно красивый коттедж
От 6 417 500р.
Площадь, м²
:
170
Количество этажей:
2
Большой деревянный дом в современном стиле
От 9 000 250 р.
Площадь, м²
:
259
Количество этажей:
2
Современный коттедж из дерева
От 8 965 500 р.
Площадь, м²
:
258
Количество этажей:
2
Классический деревянный дом с крыльцом
От 3 699 500 р.
Площадь, м²
:
98
Количество этажей:
2
Двухэтажный функциональный дом из дерева
От 3 473 000 р.
Площадь, м²
:
92
Количество этажей:
2
Классический одноэтажный деревянный дом
От 3 397 500 р.
Площадь, м²
:
90
Количество этажей:
1
Роскошный коттедж из дерева
От 9 382 500 р.
Площадь, м²
:
270
Количество этажей:
2
Двухэтажный современный деревянный коттедж
От 10 147 000 р.
Площадь, м²
:
292
Количество этажей:
2
Двухэтажный деревянный современный дом
От 8 340 000 р.
Площадь, м²
:
240
Количество этажей:
2
Деревянный двухэтажный классический дом
От 8 201 000 р.
Площадь, м²
:
236
Количество этажей:
2
Все проекты