Строительство домов в Уфе и Республике Башкортостан
ДОМА
ПРОЕКТЫ И ЦЕНЫ
БАНИ
ПОСТРОЕННЫЕ ОБЪЕКТЫ
УСЛУГИ
О КОМПАНИИ
РАССЧИТАТЬ СТОИМОСТЬ СТРОИТЕЛЬСТВА ДОМА
+7 (917) 777-33-52
Без выходных: 9:00-20:00
Пишите нам, мы онлайн
ИПОТЕКА
8 (963) 900 49 99
Заказать звонок
Сейчас работаем
Строительство домов в Уфе и Республике Башкортостан
Дома
Проекты
Бани
Построенные объекты
Услуги
Строительство фундаментов
Проектирование
Ремонт квартир и домов
О компании
Ипотека
Контакты
Заказать звонок
Строительство фундаментов
Сопутствующее строительство
Проектирование
Ремонт домов и квартир
Технадзор
Готовые дома с участками
Дома из газобетона
Дома из кирпича
Каркасные дома
Дома из дерева
Коттеджи под ключ
Все проекты
Проекты домов из камня и блоков
Проекты домов из дерева
Контакты
Рассчитать стоимость дома
Close
Рассчитать стоимость дома
Этажность
1 этаж
1 этаж с цоколем
2 этажа
2 этажа с цоколем
Длинна дома (метры)
5
20
Ширина дома (метры)
5
20
Материал несущих стен
Кирпич
Керамический блок
Газоблок
Профилированный брус
Оцилиндрованный брус
Каркас из дерева
Материал фасада
Облицованный кирпич
Декоративная штукатурка
Декоративный Камень
Комбинированный сайдинг
Материал перекрытий
Деревянное
Монолитное
Плиты перекрытий
Материал кровли
Металлочерепица
Гибкая черепица
Натуральная черепица
Плоская кровля
Профлист
Планируемая дата начала строительства
В ближайшее время
В течении 3-х месяцев
В течении полу года
Пока планирую
Ваше имя
Ваш номер телефона
Рассчитать стоимость
Оставьте заявку и наш менеджер перезвонит Вам!
Данные успешно отправлены. Спасибо!
Перезвонить мне
+7(963) 90 04 999
ГОЛОСОМ - ПРОЩЕ!
За консультацию и расчет стоимости дома деньги не берём, контакты третьим лицам не передаем и звонками не надоедаем!
Гарантированная скидка в подарок!
Да, перезвоните мне сейчас
Нет, спасибо - я разберусь самостоятельно
[{"lid":"1531306243545","ls":"10","loff":"","li_type":"ph","li_ph":"mail@example.com","li_req":"y","li_masktype":"a","li_maskcountry":"RU","li_nm":"Phone"}]
Заявка на звонок
Выберите параметры дома, чтобы получить точный расчет и гарантированную скидку или подарок!
Нажмите на кнопку "получить расчет", чтобы узнать стоимость строительства дома.
Шаг 1. Укажите параметры дома
1 этаж
1 этаж с цоколем
2 этажа
2 этажа с цоколем
Длинна дома (метры)
5
20
Ширина дома (метры)
5
20
Шаг 2. Выберете исполнение дома
Кирпич
Керамический блок
Газоблок
Профилированный брус
Клееный брус
Оцилиндрованный брус
Каркас из дерева
Материал фасада
Облицованный кирпич
Декоративная штукатурка
Декоративный Камень
Комбинированный сайдинг
Материал перекрытий
Деревянное
Монолитное
Плиты перекрытий
Материал кровли
Металлочерепица
Гибкая черепица
Натуральная черепица
Плоская кровля
Профлист
Шаг 3. Выберите подарок
Окна
Озеленение участка
Скидка 5% на строительство под ключ
Шаг 3. Укажите контакты
Планируемая дата начала строительства
В ближайшее время
В течении 3-х месяцев
В течении полу года
Пока планирую
Получить расчет
Назад
Вперед
Вперед
Заказать звонок
Мы перезвоним Вам в ближайшее время.
Отправить
Главная
»
Проекты
»
Проект двухэтажного коттеджа
Проект двухэтажного коттеджа
Проект дома в подарок
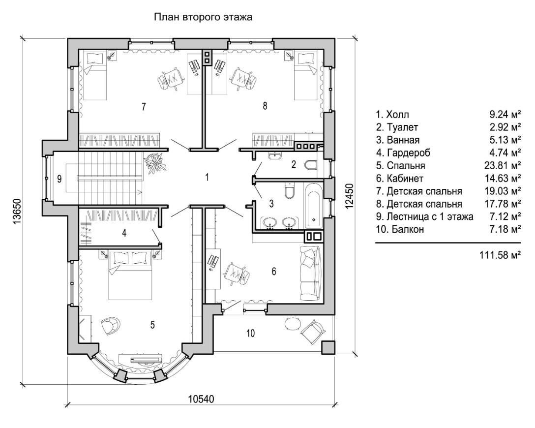
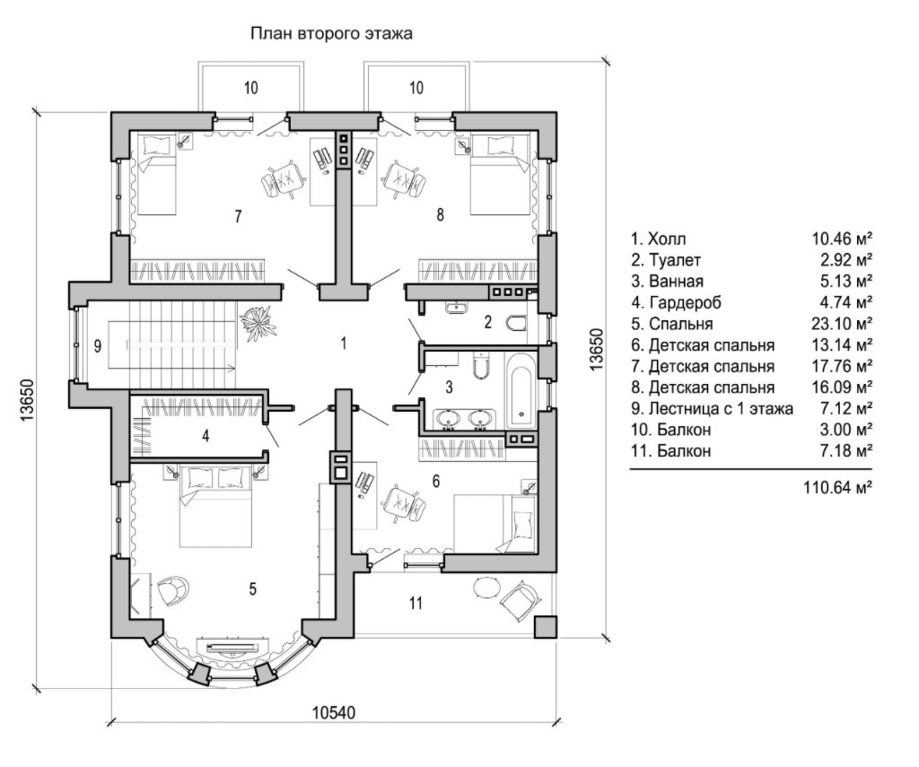
Характеристики
Размеры дома
Общая площадь
Этажность
Срок строительства
10,54 х 13,85м²
218 м²
2
От 4-х мес.
Варианты исполнения
• Облицовочный кирпич
• Декоративный камень
• Декоративная штукатурка
• Комбинированный
Фасад:
• Кирпич
• Газоблок
• Керамический блок
Материал стен:
Цена строительства дома
От
9 755 500
р.
Варианты планировок
Получить консультацию
Возможна ипотека или кредит
Персональная скидка на последующее строительство
Первый этаж
Второй этаж
Первый этаж
Второй этаж
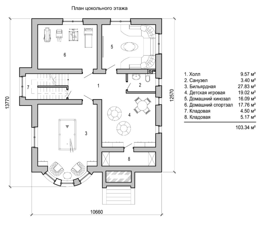
Вариант цокольного этажа
Популярные проекты месяца
Двухэтажный небольшой красивый дом
От 5 209 525р.
Площадь, м²
:
109,1
Количество этажей:
2
Красивый дом с мансардой
От 6 098 630р.
Площадь, м²
:
127,72
Количество этажей:
2
Двухэтажный дом в современном стиле
От 6 188 400р.
Площадь, м²
:
129,6
Количество этажей:
2
Красивый двухэтажный дом
От 5 510 827р.
Площадь, м²
:
115,41
Количество этажей:
2
Двухэтажный функциональный дом
От 3 526 337р.
Площадь, м²
:
73,85
Количество этажей:
2
Двухэтажный небольшой дом
От 3 892 102р.
Площадь, м²
:
81,51
Количество этажей:
2
Мансардный небольшой дом
От 5 395 750р.
Площадь, м²
:
113
Количество этажей:
2
Одноэтажный уютный дом
От 4 536 250р.
Площадь, м²
:
95
Количество этажей:
1
Двухэтажный небольшой дом
От 5 348 000р.
Площадь, м²
:
112
Количество этажей:
2
Одноэтажный дом
От 5 682 250р.
Площадь, м²
:
119
Количество этажей:
1
Популярный проект одноэтажного дома
От 5 491 250р.
Площадь, м²
:
115
Количество этажей:
1
Кирпичный одноэтажный небольшой дом
От 4 058 750р.
Площадь, м²
:
85
Количество этажей:
1
Одноэтажный функциональный дом
От 3 915 500р.
Площадь, м²
:
82
Количество этажей:
1
Одноэтажный дом с тремя спальнями
От 4 775 000р.
Площадь, м²
:
100
Количество этажей:
1
Небольшой одноэтажный дом
От 3 915 500р.
Площадь, м²
:
82
Количество этажей:
1
Все проекты
Реализованные обьекты
Баня на девичьей горе
2021 год
Смотреть
Коттедж в чёрном кордоне
2022 год
Смотреть
Дом в жуково
2021 год
Смотреть
Коттедж в зинино
2022 год
Смотреть
Дом в мусино
2021 год
Смотреть
Все объекты